1

Corso Roma 91-95 - negozio 325 mq
Moncalieri (TO)

Richiesta

920.000 €

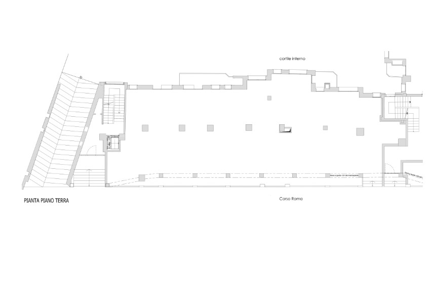
planimetria

superficie

325 m2

mappa

Location

BengasiStyle, un progetto di rinnovamento totale situato all'incrocio tra Corso Roma e Piazza Bengasi, al confine tra Torino e Moncalieri, prevede la realizzazione di 49 appartamenti con 18 posti auto nell’interno cortile, offrendo un'opportunità solida per gli investitori o una residenza adatta alle esigenze moderne, caratterizzata da praticità, versatilità e convenienza. In una sola parola: comodità. Posizionato a breve distanza dalla fermata della linea 1 della metropolitana di Torino, BengasiStyle assicura un accesso diretto al centro della città, facilitando gli spostamenti. La vicinanza alle principali vie di comunicazione garantisce un accesso agevole a qualsiasi destinazione, rendendolo sia un’ottima scelta per la vita quotidiana sia una scelta di investimento strategica. Con un'impronta energetica di Classe A2 e una costruzione rigorosamente antisismica, BengasiStyle offre un ambiente abitativo efficiente e sicuro. Grazie al supporto dell’impianto fotovoltaico, il comfort degli abitanti è ottimizzato, mantenendo bassi i costi di gestione. Con il ritorno del mercato di Piazza Bengasi nella sua sede originaria, portando oltre 150 stalli per gli ambulanti, l'offerta commerciale della zona sarà impreziosita da due locali commerciali per più di 400 metri quadrati al piano terreno dello stabile. Il progetto di riqualificazione urbanistica prevede anche la creazione di un ampio parcheggio sotterraneo collegato alla metropolitana. Nelle immediate vicinanze è presente il moderno Palazzo della Regione ed il futuro Parco della Salute, della Ricerca e dell’Innovazione, struttura sanitaria all'avanguardia. LOCALE COMMERCIALE 2 - Con una superficie totale di circa 325 mq, questo immobile si presta ad ampie possibilità di utilizzo. Si distribuisce in ingresso pedonale con totali 8 vetrine su corso Roma che offre visibilità e accesso diretto al pubblico, composto da ampio locale a pianta aperta. Questo immobile rappresenta un’ottima opportunità per chi cerca uno spazio versatile e molto ben posizionato.

dettagli immobile

  • Piano: Piano terra
  • Numero Camere: 1
  • Numero Bagni: 1
  • Riscaldamento: Centralizzato
  • Alimentazione riscaldamento: Teleriscaldamento
  • Impianto di climatizzazione: Predisposizione impianto
  • Classe Energetica: Legge 90/2013 - A2
  • Anno costruzione: 2024
  • Stato: Nuovo / In costruzione
  • Vetrine su strada: 8
  • Accesso per disabili: Si
  • Saracinesche automatiche: