1

Via Marconi 97
Magnago (MI)

Richiesta

750.000 €

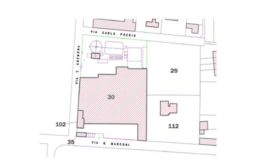
planimetria

superficie

4300 m2

mappa

Location

MAGNAGO (Milano), via Marconi, proponiamo in vendita immobile industriale di circa mq. 4000 insistente su un’area di mq. 7000 con ampia area esterna fronte strada adibita a parcheggi. Ex impianto industriale ormai dismesso, consistente in capannoni industriali, aree e cortili esterni, vari manufatti industriali al servizio dello stabilimento ed area esterna fronte strada. Nell’area oggetto di vendita, è favorita la riconversione funzionale, attraverso la dismissione delle attività esistenti. La destinazione principale perseguita dal Comune è quella residenziale e terziaria. Ad esempio il comune accoglie progetti commerciali al di sotto dei 1.500mq. Gli interventi sono subordinati a piano attuativo o comunque mediante accordo con il Comune. L’area è adiacente al centro città e nelle vicinanze della stazione ferroviaria per i collegamenti con Milano, a pochi minuti da Busto Arsizio, Legnano e Gallarate. In ottima posizione per raggiungere gli aeroporti (Aeroporto Malpensa a 15 minuti auto), ingresso autostrade a 20 minuti, Milano a meno di mezz’ora. Per ulteriori informazioni chiamaci subito: 0254100101 - infomilano@investitalia.com

dettagli immobile

  • Piano: Terra
  • Categoria catastale: D/1
  • Rendita catastale: 18.592,45 €
  • Classe Energetica: Non classificabile
  • Posti auto: 20
  • Richiesta posto auto: Compreso nel prezzo
  • Anno costruzione: 1970
  • Stato: Da ristrutturare
  • Altezza capannone: 4,50 m
  • Capannone con pilastri:
  • Passo carrabile:
  • Proprietà recintata: