1

Via Acqui 91
Rivoli (TO)

Richiesta

920.000 €

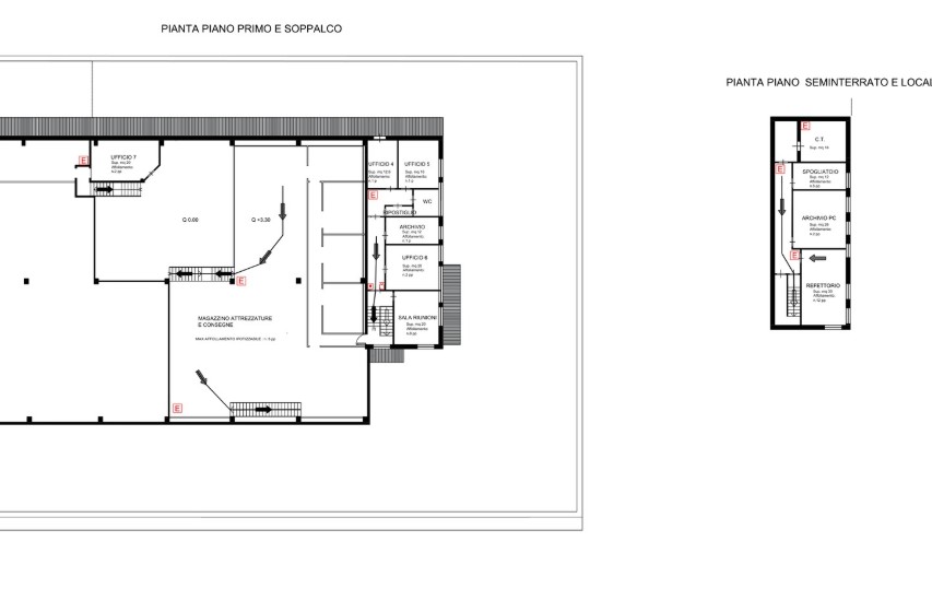
planimetria

superficie

1650 m2

mappa

Location

CAPANNONE D/7 A RIVOLI – CASCINE VICA | CARROPONTE 5 TONNELLATE Se stai cercando un capannone industriale, in una zona dove la richiesta è altissima e le occasioni sono sempre più rare, questa proposta merita tutta la tua attenzione. Proponiamo in vendita capannone categoria catastale D/7 situato nella richiestissima zona industriale di Cascine Vica – Rivoli, posizione strategica per qualsiasi attività produttiva o logistica grazie alla vicinanza immediata a tangenziale, autostrade e principali arterie di collegamento di Torino e provincia. L’immobile è attualmente locato ad una realtà solida e strutturata, con un canone mensile di € 8.200, e contratto in scadenza a settembre 2026: un’opportunità ideale sia per chi desidera un investimento a reddito, sia per chi vuole programmare un futuro utilizzo diretto dell’immobile. Il capannone è progettato per chi lavora con esigenze industriali reali, grazie a dotazioni tecniche rare da trovare in questa zona. È presente infatti un carroponte con portata 5 tonnellate (5.000 kg), elemento estremamente strategico per aziende meccaniche, produttive o specializzate. All’interno troviamo inoltre una zona soppalcata ampia e calpestabile, con portata rinforzata di 400 kg/mq, ideale come deposito, archivio tecnico o area operativa supplementare. Altezze interne: • Altezza capannone: 6,45 metri • Altezza sotto soppalco: 3,10 metri Accessi e portoni: L’immobile dispone di due ingressi esterni, di cui uno automatico, con larghezze rispettivamente di 4,20 m e 4,90 m. Il portone principale misura 4,90 m di larghezza per 3,90 m di altezza, perfetto per carico/scarico e movimentazione mezzi. Dal punto di vista impiantistico e manutentivo, l’immobile offre un livello superiore: • Tetto rifatto nel 2017 • Caldaie recenti (2022) - possono essere azionate indipendentemente per riscaldare il capannone nelle diverse zone. • Riscaldamento con termostrisce per l’intero capannone e termosifoni • Cabina elettrica interna ed esterna • Presa esterna per scarico fumi (prova compressori) All’esterno sono presenti vasche dedicate per la raccolta acqua e oli esausti, complete di pompa per recupero e smaltimento, dettaglio fondamentale per attività industriali strutturate. Massima attenzione anche alla sicurezza: • Barriere antifurto con luci esterne a passaggio • Luminarie antisfondamento • Sensori antifurto anche al piano superiore In un mercato dove i capannoni realmente attrezzati e ben collegati sono sempre più difficili da reperire, questa proprietà rappresenta un asset concreto e strategico, capace di offrire stabilità, redditività e prospettiva di crescita. Immobili di questo livello, in questa zona, non restano disponibili a lungo: la domanda è elevata e l’offerta è sempre più limitata. Contattaci subito per ricevere maggiori informazioni e fissare una visita riservata.

dettagli immobile

  • Numero Bagni: 4
  • Riscaldamento: Autonomo
  • Alimentazione riscaldamento: Metano
  • Categoria catastale: D/7
  • Rendita catastale: 8738 €
  • Classe Energetica: Legge 90/2013 - F
  • Indice di Prestazione Energetica: 283,21 kWh/mq anno
  • Anno costruzione: 1979
  • Stato: Buono / Abitabile
  • Altezza capannone: 6 m
  • Altezza Sottotrave: 6 m
  • Capannone con pilastri:
  • Carroponti: 1
  • Spogliatoio:
  • Posti auto: 350
  • Passo carrabile:
  • Proprietà recintata: