1

Via Botticelli 61-63
Torino (TO)

Richiesta

9.800 €

planimetria

superficie

4550 m2

mappa

Location

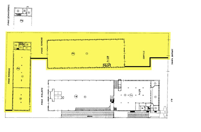
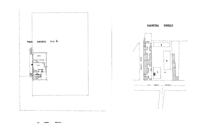
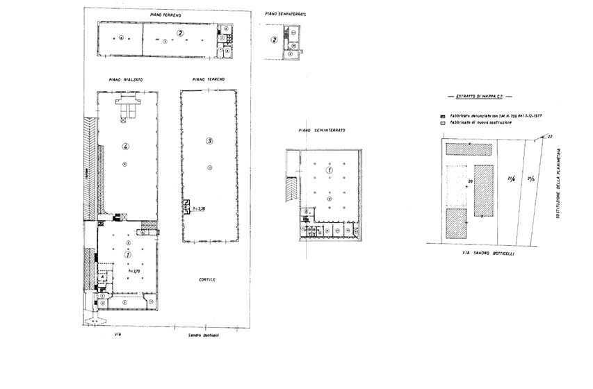
COMPLESSO INDUSTRIALE IN VIA BOTTICELLI 61 - 63 Il complesso è situato all’interno del quartiere Regio Parco - Barriera di Milano, area storicamente produttiva, oggi interessata da un importante processo di riqualificazione urbana. Il complesso di via Botticelli 61-63 si sviluppa su una superficie complessiva di oltre 10.000 mq, articolata in 4 fabbricati oltre aree di pertinenza. La locazione si riferisce a 2 unità – evidenziate nella planimetria - di cui una ha una superficie di ca. 1.650 mq coperti e l’altra di ca. 900 mq. Le unità non sono tra loro collegate ma interconnesse tramite tettoia. I due fabbricati hanno di pertinenza circa 2.000 mq di aree scoperte compreso piazzale antistante l’ingresso da via Botticelli di circa 1.200 mq. Le altezze sono di circa 4 m per la struttura di 900 mq e circa 5,2 m sotto trave e 7,2 m a tetto, con struttura a campata unica, per quella da circa 1.650 mq. Ai due fabbricati sono riservati due accessi carrai su un fronte di circa 30 m antistante via Botticelli che consentono una gestione efficiente dei flussi di ingresso ed un’importante visibilità dal fronte strada. L’impianto planimetrico regolare e la modularità degli spazi rendono i fabbricati estremamente versatili, adatti a funzioni produttive, artigianali, logistiche. La posizione risulta strategica grazie all’eccellente accessibilità sia verso il centro città, raggiungibile in circa 15 minuti, sia verso la tangenziale nord e l’accesso alla Torino-Milano. La zona è servita da numerose linee di trasporto pubblico, con fermate di autobus e tram a pochi metri e dalla stazione ferroviaria Torino Rebaudengo Fossata a circa 1 km. L’aeroporto di Torino-Caselle si trova a circa 20 minuti d’auto. Nel raggio di 600 m sorgono poli commerciali, logistici ed industriali con importanti realtà produttive ed insediamenti direzionali che confermano anche la natura terziaria e commerciale dell’area. La combinazione tra ottimi collegamenti, presenza di numerosi servizi e dinamiche di riqualificazione rende l’ubicazione particolarmente interessante per attività produttive, logistiche, terziarie e commerciali alla ricerca di spazi funzionali in un contesto urbano in evoluzione.

dettagli immobile

  • Piano: terra
  • Numero Camere: 3
  • Numero Bagni: 3
  • Categoria catastale: D/8
  • Rendita catastale:
  • Classe Energetica: In attesa di certificazione
  • Ascensore: No
  • Anno costruzione: 1960
  • Stato: Buono / Abitabile
  • Bagno per disabili:
  • Passo carrabile:
  • Posti auto: 20
  • Altezza capannone: 7.20 m
  • Altezza Sottotrave: 5.20 m
  • Capannone con pilastri: No
  • Riscaldamento: Autonomo
  • Tipo impianto riscaldamento: A radiatori
  • Alimentazione riscaldamento: Metano