1

Via Cernaia 44
Torino (TO)

Richiesta

1.500 €

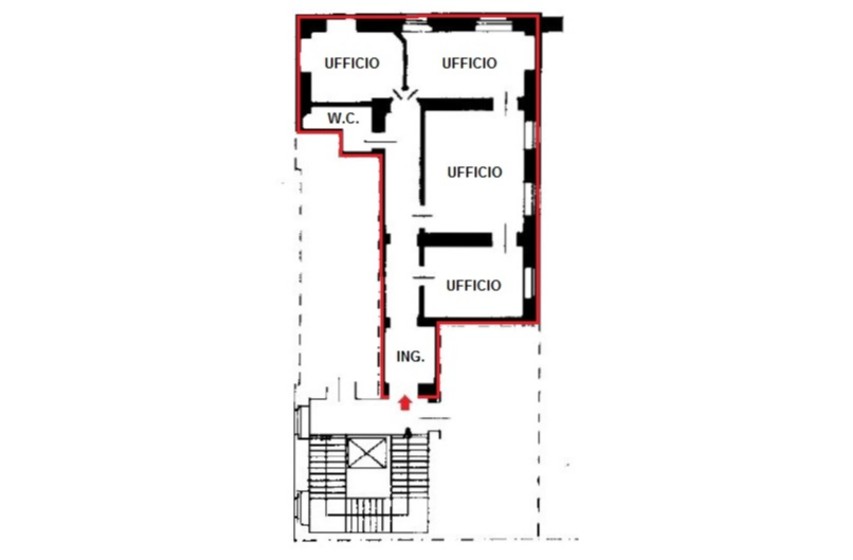
planimetria

superficie

115 m2

mappa

Location

L’immobile è situato al civico 44 di via Cernaia, nel tratto compreso tra corso Bolzano e corso Vinzaglio. La vicinanza alla stazione di Porta Susa, garantisce la possibilità di raggiungere l’immobile usufruendo di numerose linee urbane dei servizi pubblici, la metropolitana ed il treno. La zona è caratterizzata dalla presenza di prestigiosi immobili residenziali e di primari studi professionali, istituti di credito, uffici pubblici oltre che a diverse tipologie di attività commerciali. L’ufficio si trova al primo piano di un condominio signorile del ‘900 in buone condizioni manutentive, dotato di ascensore. Internamente è composto da ingresso, corridoio di disimpegno, 4 grandi uffici, bagno oltre ad una ampia cantina di pertinenza al piano interrato. Tutti i locali si presentano in buone condizioni di manutenzione e cablati. Disponibile con canone a parte, un comodo posto auto all’interno del cortile condominiale. L’ufficio attualmente locato da studio professionale, sarà libero a partire dal 1° giugno.

dettagli immobile

  • Piano: 1
  • Numero Camere: 4
  • Numero Bagni: 1
  • Disponibile da: 01/06/2026
  • Spese condominiali mensili: 85 €
  • Riscaldamento: Centralizzato
  • Alimentazione riscaldamento: Gas
  • Categoria catastale: A/10
  • Rendita catastale: 4175,55 €
  • Classe Energetica: Legge 90/2013 - F
  • Indice di Prestazione Energetica: 107,77 kWh/mq anno
  • Tipo contratto: 6+6
  • Ascensore: Si
  • Anno costruzione: 1850
  • Stato: Buono / Abitabile
  • Infissi esterni: Vetro / Legno
  • Passo carrabile:
  • Posti auto: 1
  • Richiesta posto auto: A parte
  • Cablato: Si
  • Esposizione: Esterna