1

Via Dante 6
Collegno (TO)

Richiesta

98.000 €

planimetria

superficie

160 m2

mappa

Location

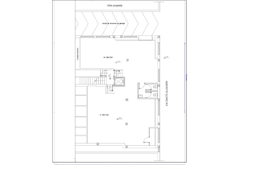
Soluzione ideale per chi desidera avviare o trasferire un’attività in un contesto servito e in forte crescita grazie al potenziamento della metropolitana. Zona comoda a tutti i servizi e a pochi passi dalla futura fermata della metropolitana “Leumann” (in corso di realizzazione). Proponiamo in vendita locale di circa 160 mq in categoria catastale D/6, destinato ad attività sportive e ricreative. Possibile anche cambio d'uso in ufficio. Questo significa che l’immobile è già perfettamente adatto e predisposto per essere utilizzato come centro sportivo, senza necessità di modifiche di destinazione d’uso. Ideale per palestra o sala fitness, sala corsi (yoga, pilates, ginnastica posturale), centro fisioterapico, scuola di danza, centro arti marziali, sala meditazione / mindfulness, studio per personal trainer, pole dance studio, attività sportive e ricreative in genere, etc. Descrizione interna Il locale si trova al piano seminterrato ed è in ottime condizioni. È composto da ingresso su zona reception/accoglienza, stanza ad uso ufficio privato (utilizzabile anche come spogliatoio o studio), ampia sala principale di circa 80 mq, ideale come sala corsi multifunzionale, bagno, ripostiglio. Possibile cambio d'uso in ufficio.

dettagli immobile

  • Piano: Interrato (-1)
  • Numero Camere: 1
  • Numero Bagni: 1
  • Riscaldamento: Centralizzato
  • Alimentazione riscaldamento: Metano
  • Categoria catastale: D/6
  • Rendita catastale: 2460 €
  • Classe Energetica: Legge 90/2013 - E
  • Indice di Prestazione Energetica: 663,63 kWh/mq anno
  • Anno costruzione: 1962
  • Stato: Buono / Abitabile