1

Corso Roma 91-95
Moncalieri (TO)

Richiesta

116.000 €

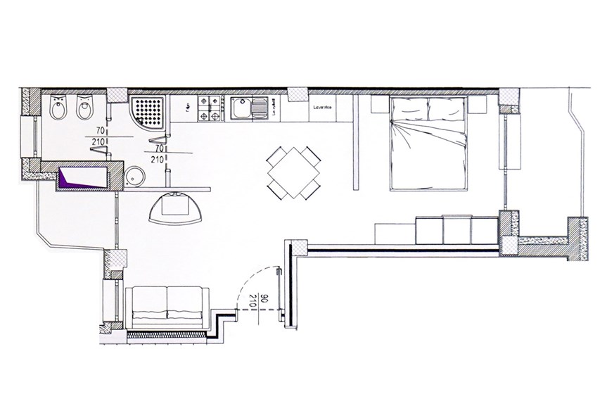
planimetria

superficie

54 m2

mappa

Video

Location

BengasiStyle, un progetto di rinnovamento totale situato all'incrocio tra Corso Roma e Piazza Bengasi, al confine tra Torino e Moncalieri, prevede la realizzazione di 49 appartamenti con 13 posti auto nell’interno cortile, offrendo un'opportunità solida per gli investitori o una residenza adatta alle esigenze moderne, caratterizzata da praticità, versatilità e convenienza. In una sola parola: comodità. Posizionato a breve distanza dalla fermata della linea 1 della metropolitana di Torino, BengasiStyle assicura un accesso diretto al centro della città, facilitando gli spostamenti. La vicinanza alle principali vie di comunicazione garantisce un accesso agevole a qualsiasi destinazione, rendendolo sia un’ottima scelta per la vita quotidiana sia una scelta di investimento strategica. Con un'impronta energetica di Classe A4, il supporto di nuovi impianti termici e isolanti, il teleriscaldamento e la produzione di 20 Kw/h dei pannelli fotovoltaici rende alto il confort abitativo, ottimizzando i costi di gestione in una costruzione rigorosamente antisismica. Con il ritorno del mercato di Piazza Bengasi nella sua sede originaria, portando oltre 150 stalli per gli ambulanti, l'offerta commerciale della zona sarà impreziosita da due locali commerciali per più di 400 metri quadrati al piano terreno dello stabile. Il progetto di riqualificazione urbanistica prevede anche la creazione di un ampio parcheggio sotterraneo collegato alla metropolitana. Nelle immediate vicinanze è presente il moderno Palazzo della Regione ed il futuro Parco della Salute, della Ricerca e dell’Innovazione, struttura sanitaria all'avanguardia. PIANO PRIMO APP. 1 - Bilocale molto luminoso con ingresso su soggiorno/pranzo, parete cucina, camera da letto con terrazzino e bagno con finestra. Completa la proprietà una cantina.

dettagli immobile

  • Locali (oltre zona giorno, cucina e servizi): 1
  • Piano: 1
  • Numero Camere: 1
  • Numero Bagni: 1
  • Riscaldamento: Centralizzato
  • Tipo impianto riscaldamento: A radiatori
  • Alimentazione riscaldamento: Teleriscaldamento
  • Impianto di climatizzazione: Predisposizione impianto
  • Classe Energetica: Legge 90/2013 - A4
  • Indice di Prestazione Energetica: 28,16 kWh/mq anno
  • Ascensore: Si
  • Anno costruzione: 2024
  • Classe immobile: Signorile
  • Stato: Nuovo / In costruzione
  • Lati liberi: Uno
  • Esposizione: Esterna
  • Cucina: A vista
  • Balcone: Si
  • Cantina: Si
  • Accesso per disabili: Si
  • Infissi esterni: Doppio Vetro / Legno
  • Porta blindata: Si
  • Fibra ottica: Si
  • Cancello elettrico: Si