1

Via Santa Clara 4
Chieri (TO)

Richiesta

990.000 €

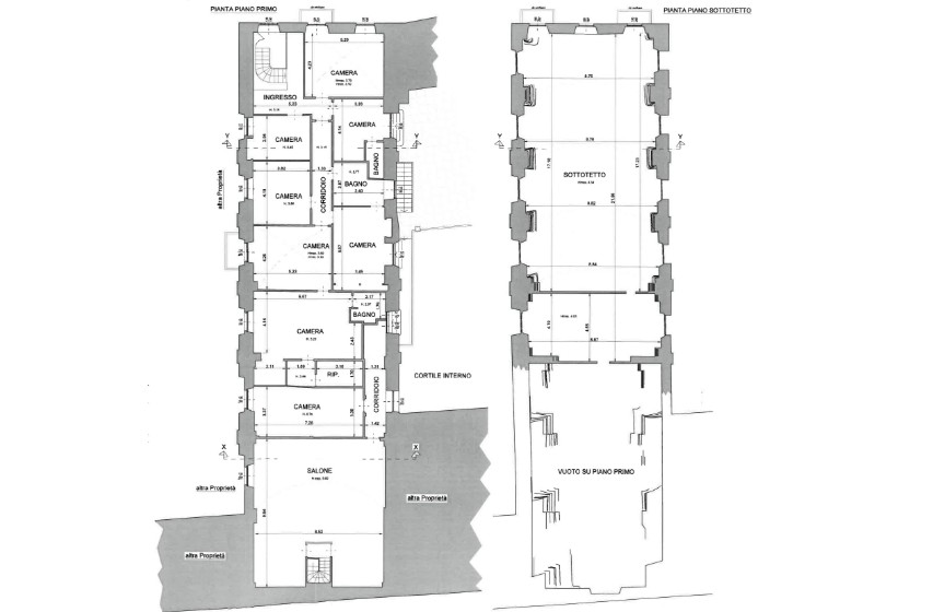
planimetria

superficie

1230 m2

mappa

Location

Nel cuore pulsante del centro storico di Chieri, disponibile per la vendita un maestoso palazzo (ex Chiesa dell’ordine delle Clarisse) risalente al 600, un immobile di inestimabile valore storico e architettonico che offre un'opportunità di investimento senza eguali. Caratteristiche Principali. Location Esclusiva: Situato in pieno centro a Chieri, l'immobile gode di una posizione privilegiata con una vista panoramica mozzafiato sul Duomo e sulla suggestiva Chiesa di San Giorgio, sulla Chiesa di San Bernardino. Patrimonio Storico: L'edificio vanta una storia affascinante, essendo stato in passato una chiesa, un convento, un poliambulatorio e, più recentemente, uno studio dentistico. Questa stratificazione storica conferisce un carattere unico e irripetibile. Dettagli di Pregio: All'interno, si possono ammirare magnifiche volte affrescate, elementi originali che testimoniano il glorioso passato del palazzo oltre che spazi con antiche volte a crociera ed altri dettagli storici; terrazzo panoramico di 180 Mq. Potenziale di Sviluppo: L'ampia metratura e la configurazione attuale permettono un'importante opera di ristrutturazione, con la possibilità di realizzare da 6 a 7 appartamenti distinti. Parcheggio Privato: Una rarità per il centro storico, la proprietà include la possibilità di creare nove posti auto, un valore aggiunto fondamentale per la residenzialità. Opportunità di Investimento L'immobile necessita di una completa ristrutturazione, offrendo all'acquirente la libertà di personalizzare gli spazi e di sviluppare un progetto residenziale di lusso, soggetto alle normative per il recupero dei beni storici. Questa proprietà è l'ideale per investitori che desiderano combinare il fascino della storia con le moderne esigenze abitative, creando unità immobiliari di alto standing in una delle zone più ambite di Chieri.

dettagli immobile

  • Locali (oltre zona giorno, cucina e servizi): 30
  • Piano: Su tre livelli
  • Numero Camere: 30
  • Riscaldamento: Autonomo
  • Alimentazione riscaldamento: Metano
  • Impianto di climatizzazione: Autonomo
  • Tipo impianto climatizzazione: Freddo / Caldo
  • Classe Energetica: Legge 90/2013 - G
  • Indice di Prestazione Energetica: 246,901kWh/mq anno
  • Anno costruzione: 1600
  • Classe immobile: Signorile
  • Stato: Da ristrutturare
  • Lati liberi: Tre
  • Esposizione: Doppia
  • Balcone: Si
  • Terrazzo: Si
  • Mansarda: Si
  • Infissi esterni: Vetro / Legno
  • Fibra ottica: Si
  • Cancello elettrico: Si