1

Via San Maurizio 16
Ciriè (TO)

Richiesta

550.000 €

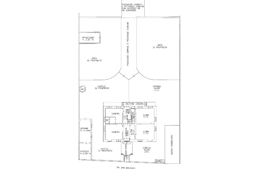
planimetria

superficie

400 m2

mappa

Location

A Ciriè, in una delle zone più tranquille e residenziali, proponiamo in vendita prestigiosa villa dei primi del ‘900, circondata da un incantevole parco privato di circa 1.000 mq. La proprietà si sviluppa su due livelli principali. Al piano rialzato si trova ingresso su quattro ampi locali, cucina abitabile e servizi; al primo piano quattro camere da letto, servizi, balcone e terrazzo. Completano la villa un piano mansardato (attualmente non abitabile), ideale come locale di sgombero o per eventuali progetti futuri, una cantina al piano interrato, utile come deposito o zona tecnica. Questa dimora, ricca di fascino e storia, offre ambienti spaziosi, soffitti alti e grandi finestre che garantiscono ottima luminosità. Il grande giardino privato la rende perfetta per chi cerca tranquillità, privacy e spazio all’aperto, pur restando comodo a tutti i servizi della città.

dettagli immobile

  • Locali (oltre zona giorno, cucina e servizi): 6
  • Piano: su più livelli
  • Numero Camere: 6
  • Numero Bagni: 2
  • Riscaldamento: Autonomo
  • Alimentazione riscaldamento: Metano
  • Impianto di climatizzazione: Assente
  • Categoria catastale: A/3
  • Rendita catastale: 991,60 €
  • Classe Energetica: Legge 90/2013 - F
  • Indice di Prestazione Energetica: 289,85 kWh/m² anno
  • Ascensore: No
  • Box auto: Doppio
  • Anno costruzione: 1900
  • Classe immobile: Signorile
  • Stato: Da ristrutturare
  • Lati liberi: Quattro
  • Esposizione: Doppia
  • Cucina: Abitabile
  • Giardino: Privato
  • Balcone: Si
  • Terrazzo: Si
  • Cantina: Si
  • Infissi esterni: Vetro / Legno
  • Camino / caminetto: Si