1

Paderno Dugnano Via Erba 20
Paderno Dugnano (MI)

Richiesta

420.000 €

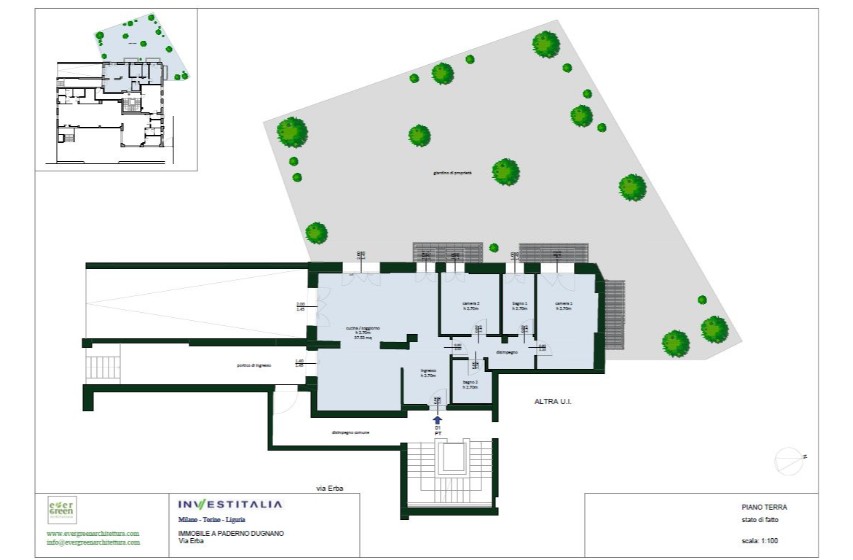
planimetria

superficie

120 m2

mappa

Location

PADERNO DUGNANO -APPARTAMENTO CON GIARDINO NUOVA COSTRUZIONE APPARTAMENTO 1 – Piano Terra | 121 mq comm. | Giardino ca. 220 mq | N/O | € 420.000 + IVA 4% Nuova costruzione, consegna entro la primavera. Nuova costruzione, consegna entro la primavera. Comprare una casa nuova in Classe Energetica A4 significa scegliere comfort reale, consumi più contenuti e un investimento più solido nel tempo: isolamento moderno, impianti efficienti (pompa di calore e fotovoltaico) e dotazioni “attuali” rendono la gestione più prevedibile e la vivibilità superiore. E Paderno Dugnano è la scelta intelligente per chi vuole spazi più grandi rispetto alla città, restando a Milano in tempi comodi. Qui l’esterno non è un contorno: è una stanza in più. Piano terra con giardino privato enorme e living collegabile direttamente al verde. In breve • Piano: Terra • Superficie: 121 mq commerciali • Esterni: giardino privato ca. 220 mq • Locali: cucina/soggiorno, 2 camere, 2 bagni • Esposizione: Nord-Ovest • Plus layout: facciata principale sul giardino, possibile collegamento diretto living–outdoor Plus impianti & comfort (Classe Energetica A4) • Riscaldamento autonomo pompa di calore • Predisposizione raffrescamento • Fotovoltaico • Domotica di base • Ascensore Finiture • Pavimenti: gres smaltato Marazzi o ceramiche Herberia • Bagni in ceramica, rubinetterie Ideal Standard • Serramenti PVC bianco doppio vetro • Porta blindata Tablet 8 Plus • C’è la possibilità di personalizzare finiture/palette rispetto agli altri appartamenti (secondo accordi con proprietà/capitolato). Vuoi vedere come si vive davvero il giardino? Prenota sopralluogo in cantiere Box & cantine: disponibili 4 box doppi (A, B, C, D) per due auto e box singoli (E, F, G). Prezzi differenti su richiesta. Disponibili anche 8 cantine di varie dimensioni (prezzi su richiesta). Servizi & collegamenti (Via Erba 20): posizione strategica tra hinterland e Milano, comoda a SS35 Milano–Meda e A52 Tangenziale Nord. In zona linee bus (es. 1, 166, 566, 727, 729, Z219, Z229) e collegamenti ferroviari suburbani (S2/S4 in area). Shopping e servizi a pochi minuti (es. Centro Commerciale Brianza) e verde al Parco Lago Nord. Presidi sanitari comodi (Garbagnate, Bassini). In prospettiva, potenziamento su ferro con la Metrotranvia Milano–Desio–Seregno con fermata prevista in zona Erba, utile anche per i collegamenti verso Milano/interscambi.

dettagli immobile

  • Locali (oltre zona giorno, cucina e servizi): 2
  • Piano: terra
  • Numero Camere: 2
  • Numero Bagni: 2
  • Giardino: Privato
  • Cucina: A vista
  • Infissi esterni: Doppio Vetro / PVC
  • Arredamento: Non arredato
  • Porta blindata: Si
  • Videocitofono: Si
  • Cancello elettrico: Si
  • Fibra ottica: Si
  • Stato: Nuovo / In costruzione
  • Anno costruzione: 2026
  • Accesso per disabili: Si
  • Lati liberi: Tre
  • Esposizione: Doppia
  • Riscaldamento: Autonomo
  • Alimentazione riscaldamento: Metano
  • Impianto di climatizzazione: Predisposizione impianto
  • Categoria catastale: A/2
  • Classe immobile: Signorile
  • Classe Energetica: Legge 90/2013 - A4