1

Paderno Dugnano Via Erba 20 bilo
Milano (MI)

Richiesta

235.000 €

planimetria

superficie

68 m2

mappa

Location

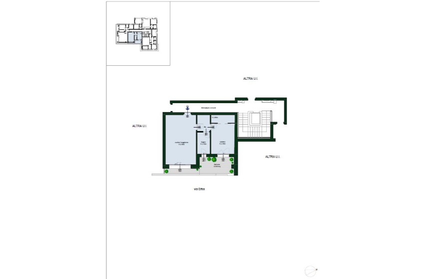
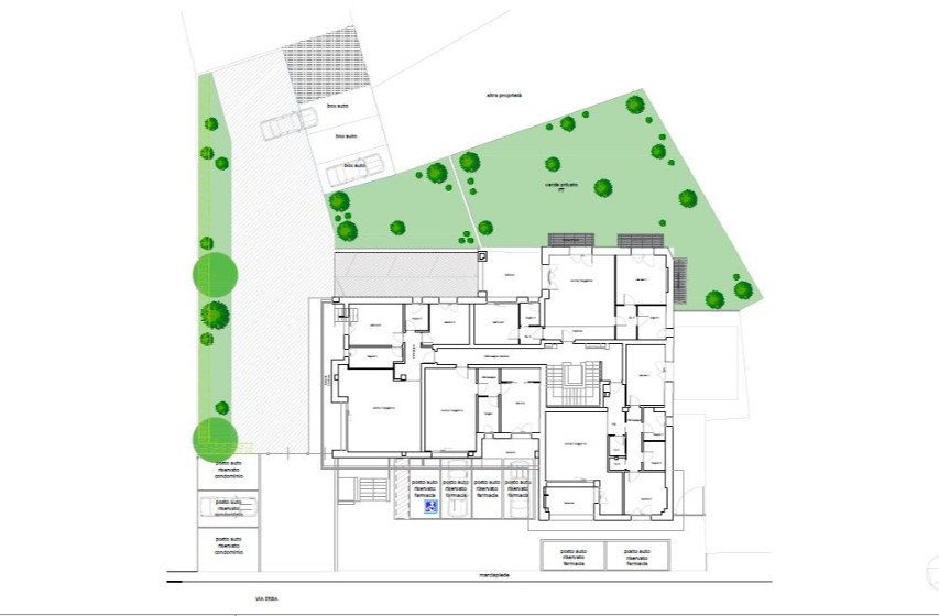
PADERNO DUGNANO -APPARTAMENTO CON TERRAZZO NUOVA COSTRUZIONE APPARTAMENTO 4 (Unità D) – Primo Piano | 69 mq comm. | Terrazzo 15,5 mq | Est | € 235.000 + IVA 4% Nuova costruzione, consegna entro la primavera. Comprare una casa nuova in Classe Energetica A4 significa scegliere comfort reale, consumi più contenuti e un investimento più solido nel tempo: isolamento moderno, impianti efficienti (pompa di calore e fotovoltaico) e dotazioni “attuali” rendono la gestione più prevedibile e la vivibilità superiore. E Paderno Dugnano è la scelta intelligente per chi vuole spazi più grandi rispetto alla città, restando a Milano in tempi comodi. Prezzo smart + terrazz: perfetto come prima casa (o investimento) con cabina armadio. In breve • Prezzo: € 235.000 • Piano: 1° • Superficie: 69 mq commerciali • Esterni: terrazzo 15,5 mq • Locali: cucina a vista su soggiorno, 1 camera, 1 bagno • Plus: spazio dedicato cabina armadio • Esposizione: Est Plus impianti & comfort (Classe Energetica A4) Pompa di calore, predisposizione raffrescamento, fotovoltaico, domotica base, ascensore. Finiture Marazzi/Herberia, Ideal Standard, PVC doppio vetro, porta blindata Tablet 8 Plus. Se vuoi un taglio pratico ma “con esterno vero”, vediamolo in cantiere. Box & cantine: disponibili 4 box doppi (A, B, C, D) per due auto e box singoli (E, F, G). Prezzi differenti su richiesta. Disponibili anche 8 cantine di varie dimensioni (prezzi su richiesta). Servizi & collegamenti (Via Erba 20): posizione strategica tra hinterland e Milano, comoda a SS35 Milano–Meda e A52 Tangenziale Nord. In zona linee bus (es. 1, 166, 566, 727, 729, Z219, Z229) e collegamenti ferroviari suburbani (S2/S4 in area). Shopping e servizi a pochi minuti (es. Centro Commerciale Brianza) e verde al Parco Lago Nord. Presidi sanitari comodi (Garbagnate, Bassini). In prospettiva, potenziamento su ferro con la Metrotranvia Milano–Desio–Seregno con fermata prevista in zona Erba, utile anche per i collegamenti verso Milano/interscambi.

dettagli immobile

  • Locali (oltre zona giorno, cucina e servizi): 1
  • Piano: 1
  • Numero Camere: 1
  • Numero Bagni: 1
  • Terrazzo: Si
  • Cucina: A vista
  • Infissi esterni: Doppio Vetro / PVC
  • Arredamento: Non arredato
  • Porta blindata: Si
  • Videocitofono: Si
  • Cancello elettrico: Si
  • Fibra ottica: Si
  • Stato: Nuovo / In costruzione
  • Anno costruzione: 2026
  • Accesso per disabili: Si
  • Lati liberi: Uno
  • Esposizione: Doppia
  • Riscaldamento: Autonomo
  • Alimentazione riscaldamento: Metano
  • Impianto di climatizzazione: Predisposizione impianto
  • Categoria catastale: A/2
  • Classe immobile: Signorile
  • Classe Energetica: Legge 90/2013 - A4