1

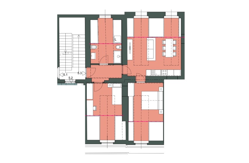
Corso Vittorio Emanuele II 34 - Appartamento 5.3
Torino (TO)

Richiesta

395.000 €

planimetria

superficie

83 m2

mappa

Video

Location

Un prestigioso palazzo dell’800 trasformato in una residenza tecnologica e moderna grazie ad una radicale e profonda ristrutturazione che darà vita a 31 unità abitative con soluzioni che variano dal bilocale al pentalocale con possibilità di scelta layout. Ampi terrazzi e balconi realizzati ex novo renderanno unici gli spazi all’aperto con affaccio sulla corte interna. Possibilità di box auto. App.5.3 composto da ingresso, soggiorno con angolo cottura, due camere da letto e bagno finestrato. La mansarda ha doppia esposizione con una splendida vista sulla Mole. I servizi offerti del fabbricato comprendono videosorveglianza, palestra, distributore di acqua potabile refrigerata, lockers, bookcrossing, ciclorimessa attrezzata ed altro ancora, il tutto integrato con impianto di domotica. SMART HOUSE VITTORIO 34 è la seconda iniziativa che vede protagonisti Torchio & Daghero, impresa edile torinese specializzata da quattro generazioni in costruzioni e ristrutturazioni e RED Group, società americana d'investimento e di sviluppo immobiliare con un'esperienza ventennale nel real estate. Tutte le informazioni contenute nel presente documento sono da considerarsi indicative e non rappresentano elemento contrattuale.

dettagli immobile

  • Locali (oltre zona giorno, cucina e servizi): 2
  • Piano: 5
  • Numero Camere: 2
  • Numero Bagni: 1
  • Classe immobile: Signorile
  • Stato: Nuovo / In costruzione
  • Lati liberi: Due, paralleli
  • Esposizione: Doppia
  • Cucina: Ad angolo cottura
  • Balcone: Si
  • Cantina: Si
  • Accesso per disabili: Si
  • Tipo impianto riscaldamento: A pavimento
  • Alimentazione riscaldamento: Pompa di calore
  • Impianto di climatizzazione: Centralizzato
  • Tipo impianto climatizzazione: Freddo / Caldo
  • Categoria catastale: A/2
  • Box auto: Singolo
  • Richiesta Box: Richiesta a parte
  • Ascensore: Si
  • Porta blindata: Si
  • Cancello elettrico: Si
  • Videocitofono: Si