1

Via Bernardino Verro 45
Milano (MI)

Richiesta

355.000 €

planimetria

superficie

110 m2

mappa

Location

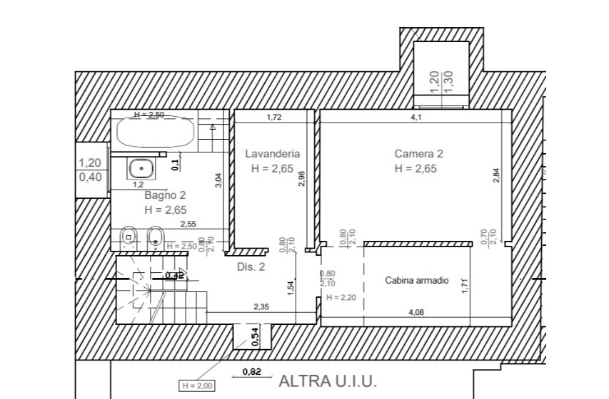
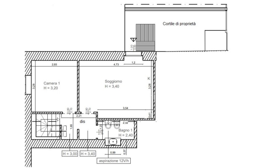
Via Bernardino Verro n. 45, nella riqualificata zona compresa tra Fondazione Prada e Ripamonti, proponiamo in stabile d’epoca, appartamento di 110 mq circa ristrutturato completamente nel 2025. L’immobile, disposto sue due livelli si compone come segue al piano terra: ingresso indipendente da grazioso cortiletto di proprietà, soggiorno con cucina a vista, camera matrimoniale e bagno con box doccia doppio oltre comodo disimpegno che permette di accedere al piano seminterrato (ABITABILE– Categoria catastale A/3) accessibile tramite una comoda scala interna. Qui troviamo la seconda camera da letto matrimoniale dotata di ampia cabina armadio, un locale utilizzabile come lavanderia/ripostiglio e il secondo bagno molto ampio, finestrato e dotato di vasca idromassaggio/doccia. Spese condominiali contenute anche grazie al riscaldamento autonomo ad aria. La zona in cui si trova l’immobile è strategica, a poca distanza dall’Università Bocconi; ottimamente servita da negozi e mezzi di superficie (bus 65 – 79 – 95) e stazione Tibaldi-Bocconi a 10 minuti a piedi.

dettagli immobile

  • Locali (oltre zona giorno, cucina e servizi): 2
  • Piano: terra
  • Numero Camere: 2
  • Numero Bagni: 2
  • Spese condominiali mensili: 80 €
  • Categoria catastale: A/3
  • Rendita catastale: 787,6
  • Cucina: A vista
  • Arredamento: Non arredato
  • Giardino: Privato
  • Armadi a muro: Si
  • Infissi esterni: Doppio Vetro / PVC
  • Impianto TV: Centralizzato
  • Porta blindata: Si
  • Anno costruzione: 1930
  • Classe immobile: Media
  • Stato: Nuovo / In costruzione
  • Lati liberi: Due, paralleli
  • Esposizione: Doppia
  • Riscaldamento: Autonomo
  • Tipo impianto riscaldamento: Ad aria
  • Impianto di climatizzazione: Autonomo
  • Tipo impianto climatizzazione: Freddo / Caldo