1

Via Cavour 21 - Mq 125
Torino (TO)

Richiesta

2.000 €

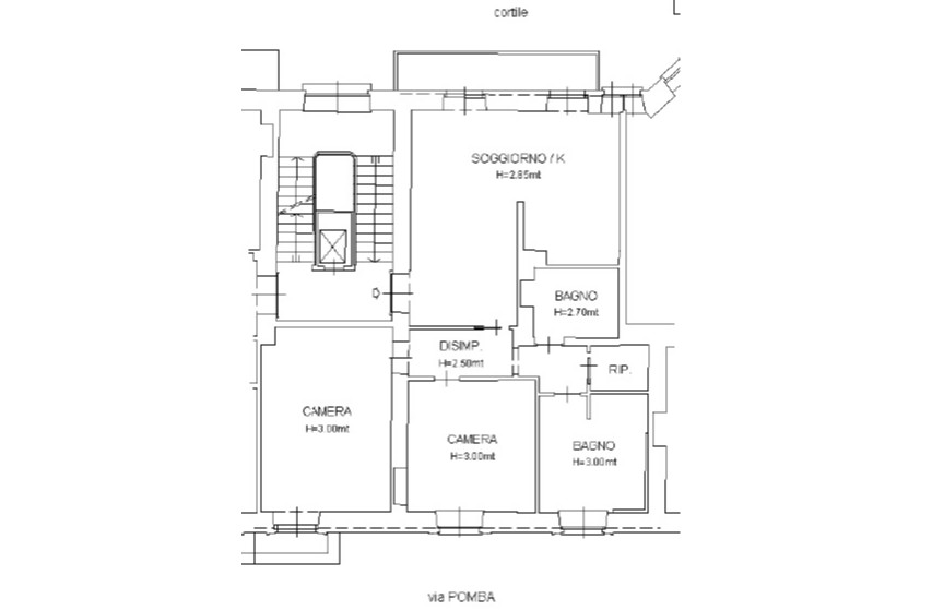
planimetria

superficie

123 m2

mappa

Location

In zona centrale, proponiamo in locazione appartamento di 125 mq situato al 2° piano di uno stabile signorile con servizio di portineria. L’immobile si compone di: ingresso su soggiorno, cucina abitabile, due bagni, due camere da letto oltre a ripostiglio. L’appartamento dispone di aria condizionata e serramenti in PVC con doppi vetri. L’immobile viene consegnato in ottime condizioni e parzialmente arredato. Possibilità di avere un posto auto al pian terreno con canone € 2.200 anno oltre spese, o box al piano -2 con canone €2.040 anno oltre spese. Il tipo di contratto richiesto è ad uso abitativo con durata di 4+4 anni rinnovabili. Il pagamento del canone di locazione è previsto in forma mensile anticipata tramite bonifico bancario; la cauzione richiesta corrisponde a tre mensilità.

dettagli immobile

  • Locali (oltre zona giorno, cucina e servizi): 3
  • Piano: 2
  • Numero Camere: 2
  • Numero Bagni: 2
  • Spese condominiali mensili: 185 €
  • Riscaldamento: Autonomo
  • Spese riscaldamento annuali: 1300
  • Tipo impianto riscaldamento: A radiatori
  • Alimentazione riscaldamento: Metano
  • Impianto di climatizzazione: Autonomo
  • Tipo impianto climatizzazione: Freddo / Caldo
  • Classe Energetica: Legge 90/2013 - C
  • Indice di Prestazione Energetica: 116,19 kWh/m² anno
  • Tipo contratto: 4+4
  • Ascensore: Si
  • Box auto: Singolo
  • Richiesta Box: 184 €
  • Posti auto: 1
  • Anno costruzione: 1930
  • Classe immobile: Signorile
  • Stato: Ottimo / Ristrutturato
  • Lati liberi: Due, paralleli
  • Esposizione: Doppia
  • Arredamento: Parzialmente arredato
  • Balcone: Si
  • Cantina: Si
  • Portineria: Intera giornata
  • Infissi esterni: Doppio Vetro / PVC
  • Porta blindata: Si
  • Videocitofono: Si
  • Fibra ottica: Si
  • Cancello elettrico: Si