1

Via Cavour 21 - mq 175
Torino (TO)

Richiesta

2.800 €

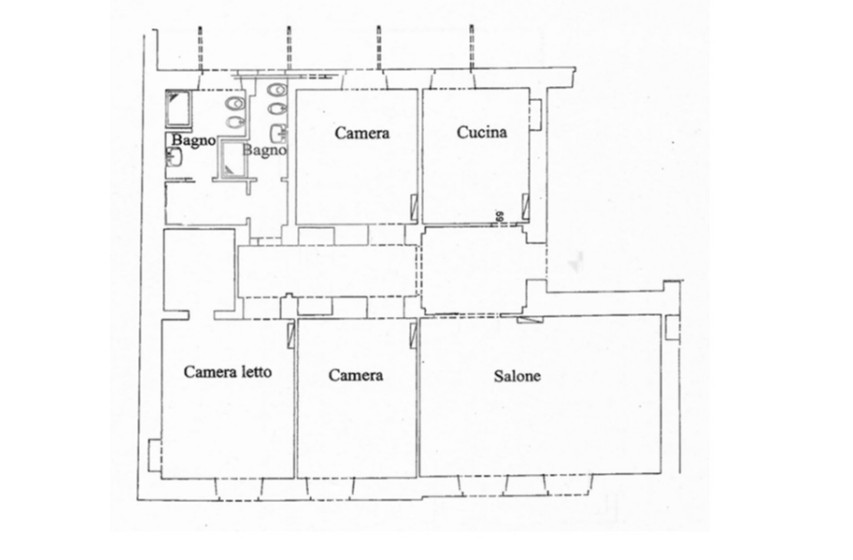
planimetria

superficie

175 m2

mappa

Location

Nel Centro di Torino, in un palazzo d’epoca, proponiamo al terzo piano, alloggio di circa 175 mq. L’immobile sarà disponibile dall’ 1/07/2026 e verrà locato parzialmente arredato con cucina. L’unità, si compone di: ingresso, ampio soggiorno con affaccio su via Pomba, cucina abitabile con balcone su interno cortile, camera da letto padronale con spazio cabina armadio, ulteriori due camere e due bagni. Il riscaldamento è centralizzato, presente impianto di raffrescamento. Possibilità di avere un posto auto al pian terreno con canone € 2.200 anno oltre spese, o box al piano -2 con canone €2.040 anno oltre spese. Il tipo di contratto richiesto è ad uso abitativo con durata di 4+4 anni rinnovabili. Il pagamento del canone di locazione richiesto è mensile anticipato con bonifico bancario, la cauzione sarà pari a tre mensilità.

dettagli immobile

  • Locali (oltre zona giorno, cucina e servizi): 3
  • Piano: 3
  • Numero Camere: 3
  • Numero Bagni: 2
  • Spese condominiali mensili: 260 €
  • Riscaldamento: Centralizzato
  • Alimentazione riscaldamento: Metano
  • Impianto di climatizzazione: Autonomo
  • Tipo impianto climatizzazione: Freddo / Caldo
  • Classe Energetica: Legge 90/2013 - D
  • Indice di Prestazione Energetica: 168,07 kWh/mq anno
  • Tipo contratto: 4+4
  • Ascensore: Si
  • Posti auto: 1
  • Richiesta posto auto: 183 €
  • Box auto: Singolo
  • Richiesta Box: 170 €
  • Anno costruzione: 1930
  • Classe immobile: Signorile
  • Stato: Ottimo / Ristrutturato
  • Lati liberi: Due, paralleli
  • Esposizione: Doppia
  • Arredamento: Solo cucina arredata
  • Cucina: Abitabile
  • Balcone: Si
  • Cantina: Si
  • Infissi esterni: Doppio Vetro / Legno
  • Porta blindata: Si
  • Videocitofono: Si
  • Fibra ottica: Si
  • Cancello elettrico: Si