1

Via Lamarmora 9 - mq 215
Torino (TO)

Richiesta

1.700 €

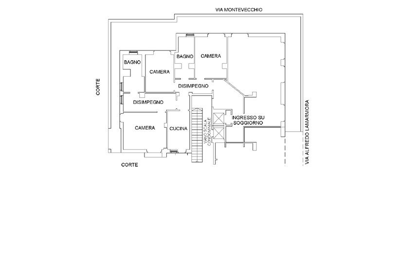
planimetria

superficie

215 m2

mappa

Location

In elegante palazzo dotato di servizio di portineria e doppi ascensori, proponiamo in locazione un attico luminoso e panoramico, situato al sesto e ultimo piano. L'immobile, ubicato tra corso Stati Uniti e via Montevecchio, precisamente in via Lamarmora n. 9, si presenta in buone condizioni di manutenzione ed è così composto: ingresso, ampia cucina arredata, due camere da letto, doppi servizi e ripostiglio. La cucina e le camere si affacciano su un terrazzo perimetrale che circonda l’intero appartamento e che, nel punto in cui raggiunge la sua massima larghezza, è impreziosito da un pergolato in legno. I pavimenti della zona notte sono in palchetto, mentre quelli della cucina arredata e del disimpegno sono in cotto. I bagni presentano pavimenti e rivestimenti in ceramica. L’appartamento è inoltre dotato di impianto di condizionamento autonomo; gli infissi sono elettrificati e provvisti di doppi vetri camera, a garanzia di isolamento termoacustico. Il contratto di locazione potrà essere ad uso abitativo con durata di 4 anni rinnovabili. Il pagamento del canone di locazione richiesto è mensile anticipato con bonifico bancario, la cauzione sarà pari a tre mensili.

dettagli immobile

  • Locali (oltre zona giorno, cucina e servizi): 2
  • Piano: 6
  • Numero Camere: 2
  • Numero Bagni: 2
  • Spese condominiali mensili: 290 €
  • Riscaldamento: Centralizzato
  • Spese riscaldamento annuali: 1700 €
  • Alimentazione riscaldamento: Metano
  • Impianto di climatizzazione: Autonomo
  • Tipo impianto climatizzazione: Freddo / Caldo
  • Categoria catastale: A/1
  • Rendita catastale: 4183 €
  • Classe Energetica: Legge 90/2013 - F
  • Indice di Prestazione Energetica: 204,14 kWh/mq anno
  • Tipo contratto: 4+4
  • Ascensore: Si
  • Box auto: Doppio
  • Richiesta Box: Compreso nel prezzo
  • Anno costruzione: 1970
  • Classe immobile: Signorile
  • Stato: Buono / Abitabile
  • Lati liberi: Quattro
  • Esposizione: Doppia
  • Cucina: Abitabile
  • Balcone: Si
  • Terrazzo: Si
  • Armadi a muro: Si
  • Cantina: Si
  • Porta blindata: Si
  • Infissi esterni: Doppio Vetro / Legno
  • Impianto d'allarme: Si
  • Cancello elettrico: Si