1

Via Rodolfo Renier 22
Torino (TO)

Richiesta

650 €

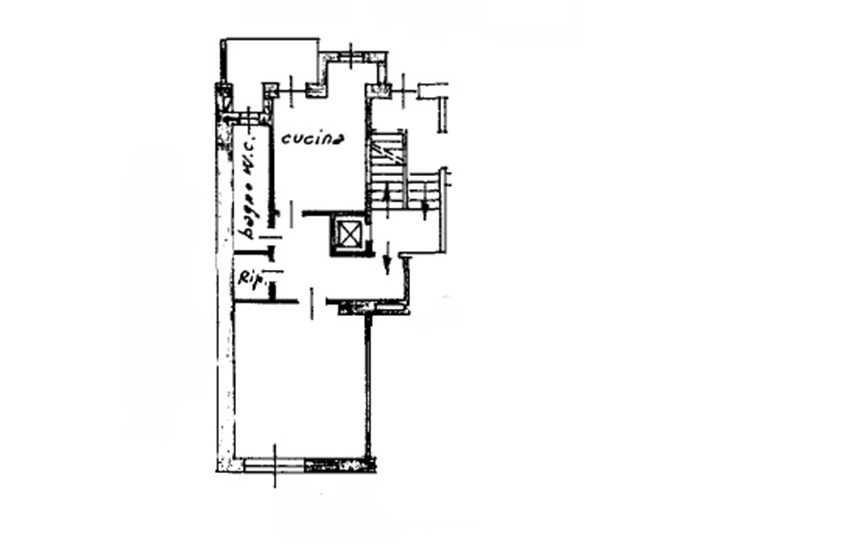
planimetria

superficie

67 m2

mappa

Location

Si propone in locazione in zona San Paolo precisamente in Via Renier Rodolfo n. 22, ampio bilocale arredato. Bilocale di 67 mq situato in stabile tranquillo e in ordine nelle parti comuni, che si dispone come segue: ingresso su spazioso disimpegno, cucina abitabile, camera da letto matrimoniale, ripostiglio e bagno. L’immobile viene locato completamente arredato completo di lavatrice e frigorifero. Il canone di locazione è di euro 650,00 + 30 euro di spese condominiali con conguaglio a fine anno. Immobile rivolto sia a studenti che a lavoratori, ben connesso ai principali poli universitari come il Politecnico di Torino, ma soprattutto ai principali servizi. Disponibile dal 01/02/2026.

dettagli immobile

  • Locali (oltre zona giorno, cucina e servizi): 1
  • Piano: Piano rialzato
  • Numero Camere: 1
  • Numero Bagni: 1
  • Spese condominiali mensili: 30 €
  • Riscaldamento: Centralizzato
  • Alimentazione riscaldamento: Metano
  • Spese riscaldamento annuali: 720 €
  • Categoria catastale: A/3
  • Rendita catastale: 551 €
  • Classe Energetica: Legge 90/2013 - G
  • Indice di Prestazione Energetica: 136,8 kWh/mq anno
  • Tipo contratto: 4+4
  • Ascensore: Si
  • Anno costruzione: 1960
  • Classe immobile: Media
  • Stato: Buono / Abitabile
  • Lati liberi: Due, paralleli
  • Esposizione: Doppia
  • Arredamento: Arredato
  • Cucina: Abitabile
  • Balcone: Si
  • Infissi esterni: Vetro / Legno
  • Porta blindata: Si
  • Fibra ottica: Si
  • Videocitofono: Si