1

Via XX Settembre 54 - mq 168
Torino (TO)

Richiesta

1.500 €

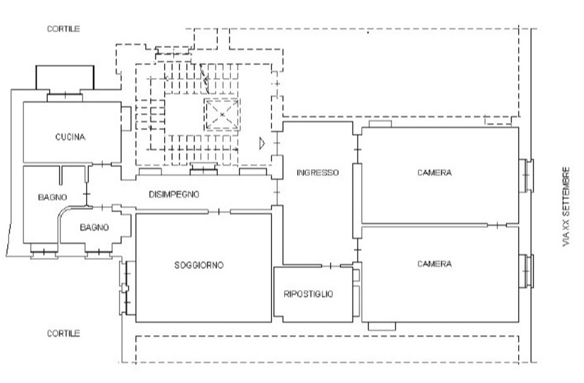
planimetria

superficie

168 m2

mappa

Location

A pochi passi da Piazza San Carlo, nel cuore del centro storico di Torino, e precisamente in via XX Settembre n. 54, proponiamo in affitto un appartamento ristrutturato, situato al secondo piano di uno stabile d’epoca con ascensore e servizio di portineria. L’appartamento si apre su un ampio ingresso che conduce ad un corridoio di disimpegno con armadi a muro, dal quale si accede alla zona giorno, composta da una spaziosa sala e da una cucina abitabile con affaccio interno con balconcino. La zona notte comprende due camere da letto di ampie dimensioni, una cabina armadi attrezzata e due bagni completi. Caratterizzano l’appartamento i soffitti decorati con stucchi originali, infissi in legno con doppi vetri, aria condizionata canalizzata, riscaldamento centralizzato con termovalvole, caldaia a condensazione per l’acqua calda sanitaria e corpi illuminanti già installati. Il contratto di locazione potrà essere ad uso abitativo con durata di 4+4 anni rinnovabili. Il pagamento del canone di locazione richiesto è mensile anticipato con bonifico bancario, la cauzione sarà pari a tre mensili.

dettagli immobile

  • Locali (oltre zona giorno, cucina e servizi): 2
  • Piano: 2
  • Numero Camere: 2
  • Numero Bagni: 2
  • Spese condominiali mensili: 175 €
  • Riscaldamento: Centralizzato
  • Alimentazione riscaldamento: Metano
  • Impianto di climatizzazione: Autonomo
  • Tipo impianto climatizzazione: Freddo / Caldo
  • Categoria catastale: A/3
  • Rendita catastale: 759 €
  • Classe Energetica: Legge 90/2013 - E
  • Indice di Prestazione Energetica: 132,4 kWh/mq anno
  • Ascensore: Si
  • Anno costruzione: 1800
  • Classe immobile: Signorile
  • Stato: Ottimo / Ristrutturato
  • Lati liberi: Tre
  • Esposizione: Doppia
  • Arredamento: Solo cucina arredata
  • Cucina: Abitabile
  • Balcone: Si
  • Cantina: Si
  • Portineria: Intera giornata
  • Infissi esterni: Doppio Vetro / Legno
  • Porta blindata: Si
  • Cancello elettrico: Si
  • Fibra ottica: Si